Schöke Landschaftsarchitekten PartGmbB Dipl.-Ing. Annette Schöke AKNW         Dipl.-Ing. Georg Schöke AKNW
ALCHEMILLA.png
1Artikel
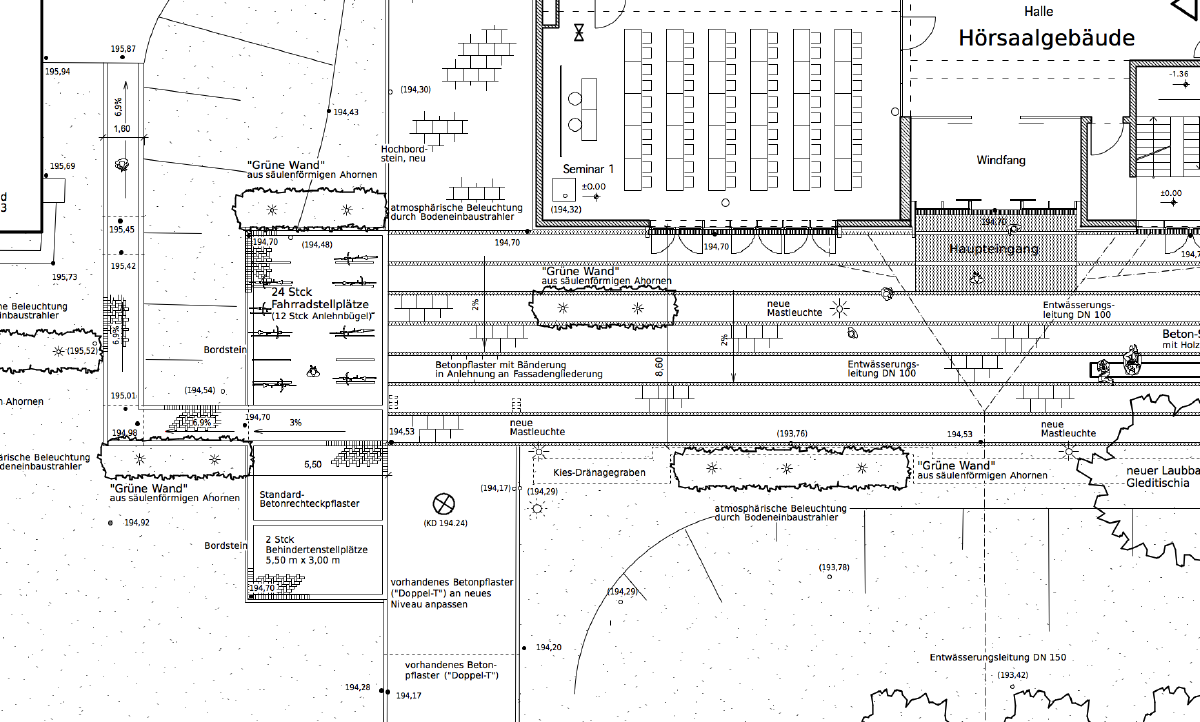
2Vorplatz
3Ansicht
4Ausführung

FH Eupener Straße Außenanlagen Neues Hörsaalgebäude, Aachen 2012

©  2025 Schöke Landschaftsarchitekten PartGmbB, 52074 Aachen